



Concealed Fastener Metal Wall Panel
Introducing the new Board and Batten metal wall panel system from Englert. Combining our concealed fastener system with fastening leg and lock, with the sharp lines of wide recessed boards alternating with thin elevated battens, this profile is sure to compliment various architectural styles in the residential and commercial industry. A timeless design matched with Englert’s industry leading quality and innovation will ensure this design will look great for years to come.
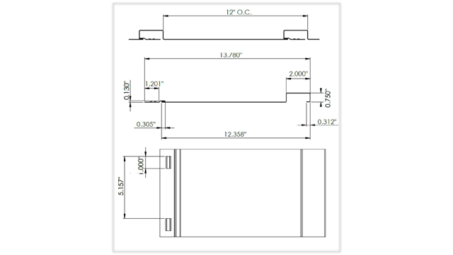
Board And Batten Wall Panel Details
- Installed Panel Width – 12” O.C.
- Available Material
- Steel – 22ga, 24ga – 30’ Max Length
- Aluminum – .032, .040 – 22’ Max Length
- Concealed Mechanical Fasteners with Pre-Punched Holes 5.157” O.C
- Vertical Wall Applications Only
- 2” Wide x ¾” Deep Vertical Batten
- Available in all Englert Standard Colors
- Florida Product Approval # FL 47597.1
Color Chart
Englert is one of the few single-source metal roof manufacturers with an in-house paint line. Whether the design calls for a natural weathered appearance or bright, high-performance, full-strength fluorocarbon colors, we’ve got a color for every project.
Darth Black
Pitch Black
Bone White
Stone White
Sandstone
Sierra Tan
Dove Grey
Slate Grey
Charcoal Grey
Patina Green
Everglade Moss
Hemlock Green
Forest Green
Hartford Green
Slate Blue
Pacific Blue
Royal Blue
Sunnet Blue
Matte Black
Medium Bronze
Dark Bronze
Mansard Brown
Burgundy
Terra Cotta
Colonial Red
Deep Red

Galvalume-Plus(Mill Finish)

Champagne (Metallic)

Preweathered Galvalume (Metallic)

Copper (Metallic)

